Appartement de 2.5 pièces à louer à Boudry

Suisse, Région Le Littoral (Ouest) | Boudry
Description
Référence:
2165 - Appartement de 2.5 pièces
Pièces:
2.5
Nb de salles de bain: 1
Nb de chambres:
1
Surfaces:
53 m2
État:
Très bon
Surface PPE:
62.8 m2
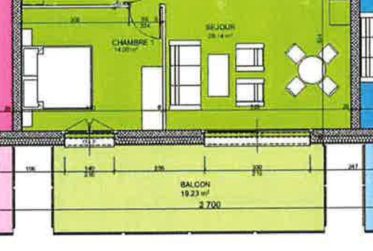
Balcon:
19 m2
Prix parking:
CHF 140.-
Parking inclus:
En sus
Parking obligatoire:
Obligatoire
Charges mensuelles:
CHF 140.-
Charges:
En sus
Disponibilité:
01.07.2026
Description
Bel appartement récent de 2.5 pièces avec grand balcon.
Situé dans un quartier calme et agréable, à proximité immédiate des commerces, des écoles et des transports publics, ce superbe appartement très récent, lumineux et parfaitement entretenu offre un cadre de vie idéal.

Au 1er étage, il se compose de :
Un grand séjour lumineux avec cuisine ouverte et accès à un spacieux balcon
Une chambre à coucher avec accès direct au balcon
Une salle de douche moderne avec colonne de lavage/séchage
Une cave au sous-sol

Une place de parc intérieure est disponible en supplément (CHF 140.–/mois).

Disponible dès le 01.07.2026

N’hésitez pas à nous contacter pour organiser une visite.
Adresse
Pré-Landry 14
2017 Boudry
Sur la carte
CHF 1'280.-
Agence Immobilière Merse IMMO SA
Agent immobilier
Agence Immobilière Merse IMMO SA
Contactez le courtier